輕質石膏隔墻板生產設備-石膏板機器設備價格
發布日期:2021-01-06 14:24 作者:zzmana
輕質石膏隔墻板是一種新型節能墻體材料,被廣泛應用于框架建筑體系中的非承重墻體的施工中。它兼具輕質高強性、阻燃耐火性、施工便捷性等于一身,能有效降低建筑物自重,且抗震性好,具有廣闊的發展空間。

一、輕質石膏隔墻板的優勢分析
(1)質量輕、隔火、隔音、隔熱、絕緣、防白蟻、防腐蝕,對地基基礎和地面板要求低。
(2)防水性能好。
(3)結構材料的穩定程度高,非常適用于地震高發區及風暴多發區。
(4)可現場隨時切割。可直接涂抹涂料,可在墻體的內腔中布置電線和管道,安裝簡單方便,省時省力。
(5)天然價廉原材料,制造、運輸和安裝過程中能耗低。
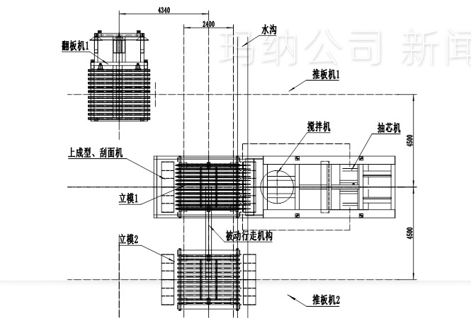
二、瑪納M30輕質石膏隔墻板生產設備簡介
MANA石膏墻板生產線是瑪納公司結合國內石膏墻板生產經驗,經過技術創新研制出的新型墻板生產線,具有投資小,見效快,配置靈活,自動化程度高等特點。該石膏墻板生產線是瑪納公司專門針對中小客戶群推出的,每次成型12塊,全過程機械成型、出模,成型精度高,工藝簡單,易操作,方便現場管理,質量可控,性價比高,適用于小規模生產。

三、輕質石膏隔墻板生產線的核心設備主要有:
1. 成型立模(2臺):一模12塊,前后端模液壓開合,雙向拉開,底模自動回位,隔板材質:耐候鋼。
2. 拖板機(1臺):推板,底模機械回位,帶行走。
3. 接板翻轉機(1臺):翻轉,合攏,底模分開,脫模,底模回位,帶行走。
4. 抽芯機(1臺):含液壓泵站。
5. 芯管(1套)。
6. 攪拌平臺(1套):自備,我方可提供圖紙。
四、石膏板生產工藝流程

配置1號模車準備穿芯管,布網、澆筑,刮平,上成型,抽芯管等待出板;配置2號模車,出板,清模,涂油,合模操作,等待澆筑。兩個工位動作都完成后,交換位置,重復上述工作循環。
結語
隨著社會的進步和高層建筑的發展,人們對居住環境有了更高的需求,傳統的建筑材料已不能滿足建筑要求和產業政策。
石膏空心墻板生產采用的原料為無污染、不取土、輕材質的建筑石膏和工業廢料副產石膏;采用節能、節水、清潔的模板冷澆生產工藝;工廠化生產,施工現場拼裝采用省時、省力、高效、安全的現代化機械施工技術,是發展潛力巨大的新型環保建材及項目,是城市現代化建筑發展的趨勢。
- 上一篇:輕質水泥發泡隔墻板設備廠家
- 下一篇:全自動輕質隔墻板生產設備價格

